Features & Amenities

Interior

  • Other Interior Features

    Wet Bar, Built-in Features, Entrance Foyer, Eat-in Kitchen, High Ceilings, Pantry, Vaulted Ceiling(s), Bar, Walk-In Closet(s), Central Vacuum

  • Total Bedrooms

    5

  • Bathrooms

    5

  • Cooling YN

    YES

  • Cooling

    N/A

  • Fireplace YN

    YES

  • Heating YN

    YES

  • Heating

    Central, Electric, Heat Pump

  • Pet friendly

    Yes

Exterior

  • Garage

    Yes

  • Garage spaces

    2

  • Construction Materials

    Block

  • Other Exterior Features

    Outdoor Grill

  • Parking

    Attached, Garage, Garage Door Opener

  • Patio and Porch Features

    Patio

  • Pool

    Yes

  • Pool Features

    Gunite, Private

  • Waterfront YN

    YES

  • View

    Lake

Area & Lot

  • Lot Features

    Waterfront

  • Property Type

    Residential

  • Property Sub Type

    Single Family Residence

  • Architectural Style

    Mediterranean

Price

  • Sales Price

    $2,495,000

  • Tax Amount

    17501.0

  • Zoning

    AGR-PU

  • Sq. Footage

    3, 932

  • Price/SqFt

    $634

HOA

  • Association

    Yes

  • Association Fee

    $840

  • Association Fee Frequency

    Monthly

  • Association Fee Includes

    N/A

School District

  • Elementary School

    Whispering Pines

  • Middle School

    N/A

  • High School

    N/A

Property Features

  • Stories

    2

  • Association Amenities

    Basketball Court, Clubhouse, Management, Spa/Hot Tub, Tennis Court(s), Trail(s)

  • Senior Community YN

    NO

  • Sewer

    Public Sewer

Schedule a Showing

Showing scheduled successfully.

<
>
IN PERSON
VIA CHAT

What is 3 + 4 ?


Change time

Mortgage calculator

Estimate your monthly mortgage payment, including the principal and interest, property taxes, and HOA. Adjust the values to generate a more accurate rate.

Your payment

Principal and Interest:

$

Property taxes:

$

HOA fees:

$

Total loan payment:

$

Total interest amount:

$

Location

County

Palm Beach

Elementary School

Whispering Pines

Middle School

High School

Listing Courtesy of Roberta Feuerstein , Lang Realty/ BR

RealHub Information is provided exclusively for consumers' personal, non-commercial use, and it may not be used for any purpose other than to identify prospective properties consumers may be interested in purchasing. All information deemed reliable but not guaranteed and should be independently verified. All properties are subject to prior sale, change or withdrawal. RealHub website owner shall not be responsible for any typographical errors, misinformation, misprints and shall be held totally harmless.

Agent HalsBlanc

FOUNDER

HalsBlanc

Call Hals today to schedule a private showing.


* Listings on this website come from the FMLS IDX Compilation and may be held by brokerage firms other than the owner of this website. The listing brokerage is identified in any listing details. Information is deemed reliable but is not guaranteed. If you believe any FMLS listing contains material that infringes your copyrighted work please click here to review our DMCA policy and learn how to submit a takedown request.© 2024 FMLS.
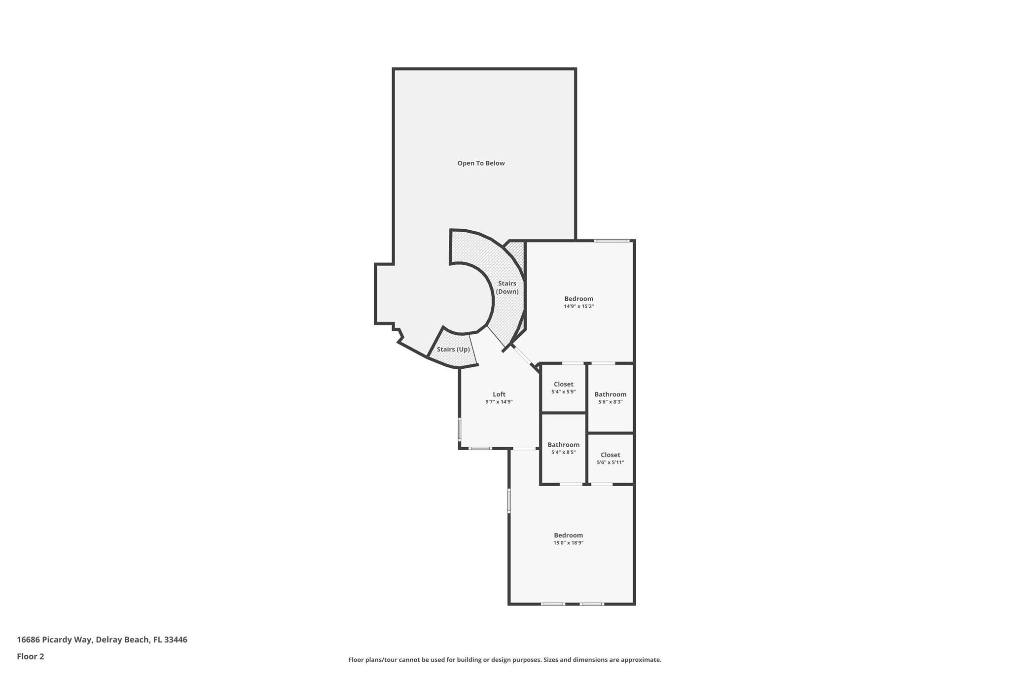
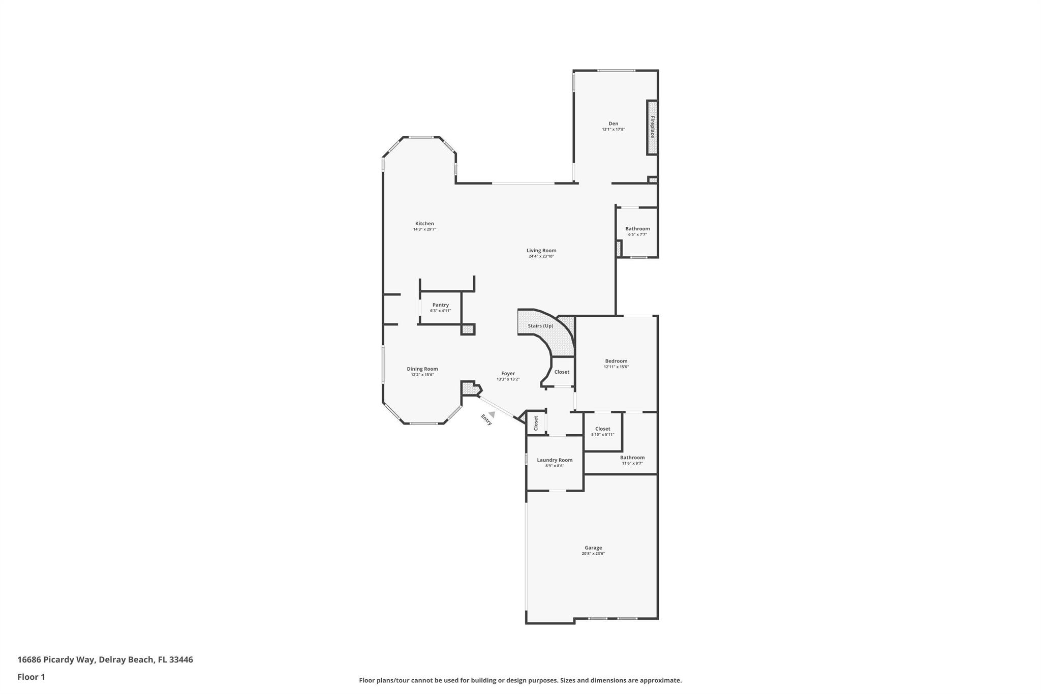
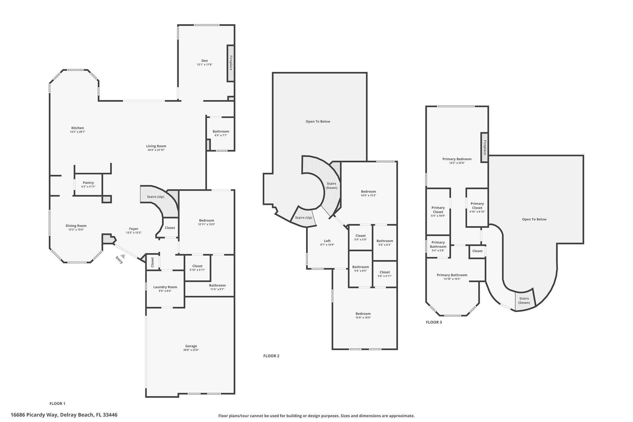
Designer Decorated Fully Furnished Sydney Model. Located in ''Model Row'' on an Spectacular Private Oversized Lakefront lot in the Heart of the Cul-De-Sac with Unparalleled Panoramic lake views on the Best Lot in Seven Bridges! This 4/5 Bedroom 5 Bath home has over $1Million in Upgrades. The Resort Style Backyard has a Pool, Spa, Rock Waterfall with Slide, and a Summer Kitchen with a motorized Screened Lanai.  You're welcomed into the Grand Foyer with a Impressive Circular Staircase, custom moldings, and two Story Volume Ceilings. There is a Chef's Kitchen featuring Wolf and Sub-zero Appliances. Private Level Master Suite with Rotunda and Balcony retreat area, has a Fireplace, Wardrobe closets En Suite Bath. Other amenities include a Whole Home Generator

16686 Picardy Way

Message successfully sent.

What would you like to know?

What is 3 + 4 ?

Related Properties

This Lake Ida charmer is close to beach and Atlantic Ave. Prefect for a family or an investment property.Move-In ready! Custom Kitchen which includes high end JennAire appliances ( induction cooktop & double oven). Custom cabintes, pull out pantries, insta hot water, pot filler and over/under counter lighting.Quartz counters throughout. Open floor plan in living areas. Large primary suite with 2 walk in closets, dual vanities, separate tub and shower. Salt water pool. Boat/rv/golf cart parking inside fence. All information provided is deemed reliable but not guaranteed.
#R11135658

Delray Beach

213 Kings Lynn

4 Beds

3 Baths

3,249 Sq.Ft.

$2,195,000

MLS#: R11135658

Experience modern coastal living in Delray Beach's newest condominium community! This luxurious 1,978 sq ft home offers an exquisite blend of elegance and comfort, perfectly designed to cater to your every need. With 3 spacious bedroom suites and 3.5 beautifully appointed bathrooms, this home is an embodiment of modern living. Located right between the Intracoastal and the blue waters of the Atlantic Ocean and conveniently just across the way from the Gulfstream Marina, this stunning home is an absolute boater's and water enthusiast's paradise! Enjoy the impressive open floor plan, featuring tile and hardwood floors that flow seamlessly throughout.
#R11135525

Delray Beach

1177 George Bush Boulevard 208

3 Beds

3 Baths

2,422 Sq.Ft.

$2,649,000

MLS#: R11135525

Waterfront Perfection with Authorized Deeded Dock -- Marina Del Rey, East Delray BeachExperience the ultimate in waterfront living from this exquisitely renovated, ground-floor residence in the highly coveted Marina Del Rey along the world-famous Palm Trail. Boasting its own private deeded dock with a brand-new 24,000 lb. hoist, water, and electric, this is your opportunity to live the true Intracoastal lifestyle--with ocean access right from your backyard.Set in an intimate boutique 10-unit building only a 10 minute walk to the beach, this meticulously maintained, turnkey end unit combines contemporary elegance with timeless coastal charm. Step inside to a bright, open-concept floor plan where panoramic water views take center stage from the moment you enter.
#R11134966

Delray Beach

931 Palm Trail 4

3 Beds

2 Baths

1,766 Sq.Ft.

$2,450,000

MLS#: R11134966

A rare downtown Delray Beach opportunity: a fully designed, permit-ready corner custom estate site by award-winning Randall Stofft Architects, just four blocks from Atlantic Avenue and less than a mile to the sand. Set on a 13,165 +/- SF lot within the Del Ida Park overlay, this offering includes plans for a two-story coastal-transitional estate totaling 6,217 SF (4,941 SF under air) with six bedrooms, six-and-a-half baths, a wellness suite, club/flex room, office/gym, and resort-style courtyard pool.Surrounded by new multimillion-dollar residences--including two luxury homes planned on the adjacent parcels--the property anchors a block that's rapidly becoming one of East Delray's most desirable addresses. Enjoy the ability to walk or golf-cart to cafes, boutiques, and Atlantic Avenue
#R11133859

Delray Beach

514 NE 3rd Avenue

6 Beds

6 Baths

6,217 Sq.Ft.

$2,200,000

MLS#: R11133859

Discover this stylish 3BR, 2.5-bath townhouse just steps from the ocean in Delray Beach's coveted seaside enclave! The modern kitchen features sleek cabinetry, Cambria Quartz counters, and a custom waterfall island. Bright, airy living spaces with large porcelain floors, hurricane impact windows, designer lighting, and a white oak and glass stair railing create a fresh, coastal feel throughout. The master suite offers a spa-like bath with dual vessel sinks, marble surrounds, and an air-jetted tub. Enjoy a private backyard patio, custom beverage bar, steam washer/dryer, one-car garage, a roof replaced within six years, and recently updated AC units. With private beach access and oceanfront club amenities, this home delivers the ultimate Delray Beach lifestyle.
#R11132709

Delray Beach

2115 S Ocean Boulevard 2

3 Beds

2 Baths

2,660 Sq.Ft.

$2,150,000

MLS#: R11132709

Welcome to one of Delray Beach's most coveted coastal gems! This 2BR + den townhome offers a private side yard bursting with lush tropical landscaping and a screened patio with a sparkling pool--perfect for relaxing, entertaining, or enjoying sunny Florida mornings. A unique gourmet kitchen opens to a bright, airy living area with relaxed beachy vibes throughout. The luxurious master suite features a spa-like bath with Carrara marble and ample storage. Located in a peaceful seaside enclave with private beach access, zero pet restrictions, a 2-car garage, and access to an oceanfront club, this home embodies the ultimate coastal lifestyle.
#R11132693

Delray Beach

2115 S Ocean Boulevard 1

2 Beds

2 Baths

2,876 Sq.Ft.

$2,075,000

MLS#: R11132693

THIS HOUSE SHOWS LIKE A MODEL! SITUATED ON THE MOST DESIRABLE PIE-SHAPED LOT W/A LONG LAKE VIEW! GORGEOUS HEATED POOL & SPA! SUMMER KITCHEN! ASTROTURF! CIRCULAR MARBLE DRIVEWAY & 3 CAR GARAGE! LARGEST 1 STORY HOME IN THE BRIDGES!  HOME FEATURES 5BR +OFFICE, 6 1/2 BTHS, DRAMATIC LIVING ROOM STONE WALL & DECORATIVE FIREPLACE, WHITE PORCELAIN 24x48 TILE, WOOD FLOORS, OFFICE W/ GLASS DOORS TO THE PATIO, BUILT IN IN GREAT ROOM , HUGE GOURMET KITCHEN W/ SILESTONE COUNTERS, GLASS TILE BACKSPLASH, UPGRADED SS APPLIANCES, INTERIOR JUST PAINTED, DETAILED CEILINGS & WALLS, SOLID WOOD DOORS, DESIGNER FIXTURES & FANS, CENTRAL VAC, WINDOW TREATMENTS, BUILT IN CLOSETS, CROWN MOLDINGS, SURROUND SOUND, BLACK OUT SHADES IN BR'S, ELECTRIC BLINDS,   GAS APPLIANCES, IMPACT WINDOWS & DOORS *HIT MORE*
#R11130793

Delray Beach

16786 Crown Bridge Drive

5 Beds

6 Baths

5,874 Sq.Ft.

$2,879,000

MLS#: R11130793

Modern Luxury Meets Smart Living in The Bridges, Delray BeachStep into modern elegance in this stunning 5-bedroom, 5-bathroom smart home located in the prestigious community of The Bridges. Designed for sophisticated living, this residence showcases crisp smooth ceilings, sleek glass railings, and custom trim and baseboards that elevate the bright, contemporary aesthetic throughout.The open-concept layout is accentuated by oversized 24x48 porcelain tile floors on the main level and wide plank hardwood upstairs, offering both style and durability. Entertain in style with a fully equipped outdoor kitchen, or unwind by the saltwater pool and spa in your private backyard oasis.This home is Smart Home Ready - control lighting, climate, security, and entertainment seamlessly from your
#R11131219

Delray Beach

16491 Gateway Bridge Drive

5 Beds

5 Baths

5,475 Sq.Ft.

$2,350,000

MLS#: R11131219

LOWEST PRICED DESIRABLE COLONADE GRANDE IN SEVEN BRIDGES ON MLSExquisitely appointed home with many Designer Features throughout! 5 of the 6 Bedrooms are Ensuite. This Fantastic Must See home features 6 Bedrooms with Large Upstairs Loft, Office and Separate study. Kitchen features WOLF 5 burner gas stove, Bosch Appliances & Sub Zero Fridge.  Stunning home Features Designer Light Fixtures, Custom Window Treatments, Over $20k in Battery Operated Shades in Living room, Family room, Breakfast area & Primary bedroom. Over $250k in Custom Built-Ins Featured in Family room, Dining room, Office, Loft, Kitchen Pantry, All closets & Study. Beautiful Dining room features Custom Mirrors & Chair rails. Well appointed Office w/ Custom Built-In Temperature Controlled Wine Fridge,
#R11130108

Delray Beach

16804 Strasbourg Lane

6 Beds

5 Baths

7,224 Sq.Ft.

$2,800,000

MLS#: R11130108

Experience the perfect blend of sophistication and convenience in this tri-level townhome, located just two blocks from the boutiques and restaurants of Atlantic Avenue and within walking distance of the intracoastal and ocean. Featuring 3 bedrooms plus a loft, 3.5 baths, a private elevator, and a two-car garage, the residence offers 2,500 SqFt of beautifully appointed interiors. Designed for both relaxation and entertaining, this home showcases a large rooftop terrace with sweeping 270-degree views, while the main level features a beautifully landscaped outdoor living area with a south-facing private pool, dining space, and a fully equipped summer kitchen. Completed in 2021 with uncompromising attention to detail, it blends modern luxury with timeless style--and is now ready to be yours
#R11129544

Delray Beach

200 NE 7th Avenue 3

3 Beds

3 Baths

3,640 Sq.Ft.

$2,799,000

MLS#: R11129544

 - property

Send a message

Message successfully sent.

Your message

What is 3 + 4 ?

Reason for contacting?

Sign Out

Virtual Assistant

Would you like to take the next step with this property? We can help you schedule a showing or virtual tour, or send you more details.

Yes, I would like more information.

Thank You for Your Reply, One of Our Agents will contact you as soon as possible

No, maybe later.

Thank you, you can always contact me via email, phone number or through the contact form.

Realhub AI

Lucy - Your AI-Powered Realtor

Update Your Temporary Password

Personalize your search

Enter your email and we'll notify you immediately when new listings match what you're looking for.

or enter email address

Already have an account ? Login here

Continue your home search

Already have an account ? Login here