Property
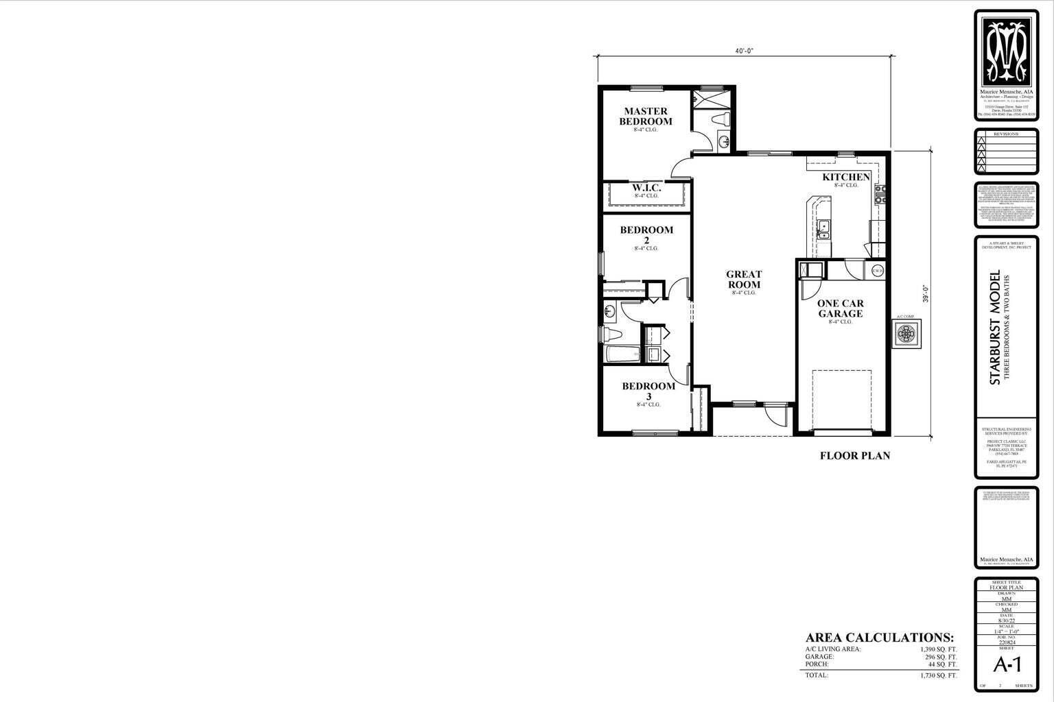
Beds
3
Full Baths
2
1/2 Baths
None
Year Built
2026
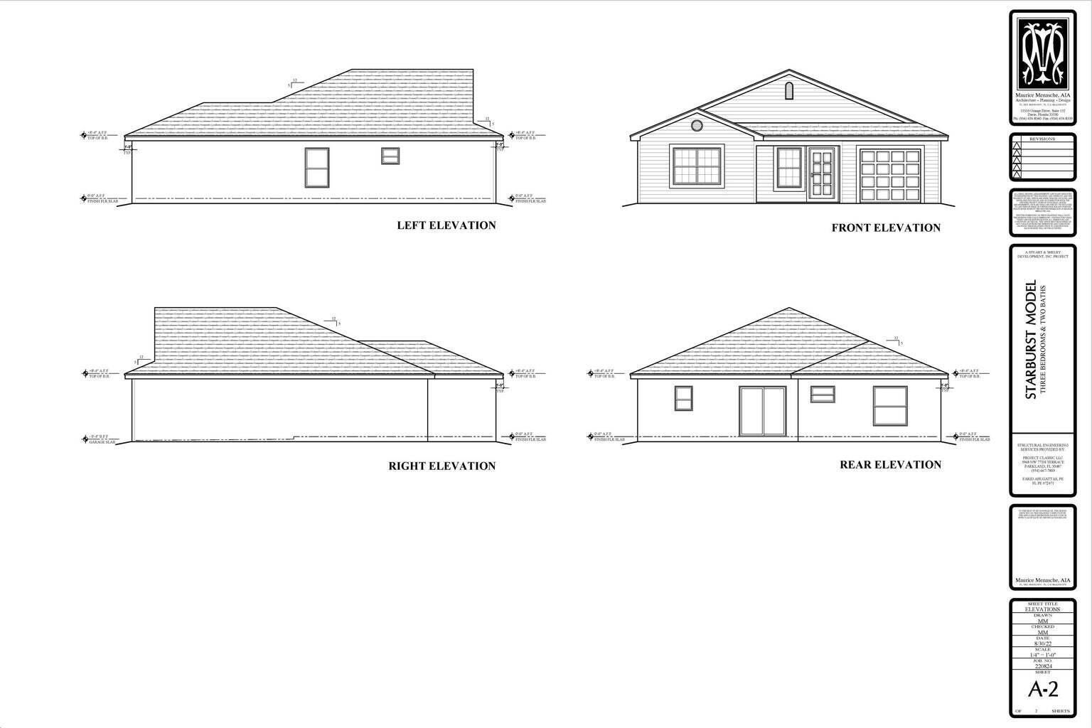
Sq.Footage
1,390
s:Introducing the Starburst Model at Oaks at Moore's Creek Phase II! **To Be Constructed** This 3 bed, 2 bath home blends modern comfortwith sustainable living. Features include hurricane impact windows/doors, fiber optic WiFi, energy-efficient gas appliances, security system & concrete block construction. Nestled in a cul-de-sac near Moore's Creek Linear Park in the Historic Lincoln Park District. Just minutes to beaches, restaurants,public transportation- walk to museums, art, jazz & more! First-time buyer & workforce housing perks may be available!
Features & Amenities
Interior
-
Other Interior Features
High Ceilings, Pantry, Walk-In Closet(s)
-
Total Bedrooms
3
-
Bathrooms
2
-
Cooling YN
YES
-
Cooling
Central Air, Ceiling Fan(s), Electric
-
Heating YN
YES
-
Heating
Central, Electric
-
Main Level Bedrooms
1
-
Pet friendly
Yes
Exterior
-
Garage
Yes
-
Garage spaces
1
-
Construction Materials
Block
-
Parking
Attached, Driveway, Garage, On Street, Garage Door Opener
-
Patio and Porch Features
Patio
-
Pool
Yes
-
Pool Features
None
-
Waterfront YN
NO
Area & Lot
-
Lot Features
Cul-De-Sac
-
Property Type
Residential
-
Property Sub Type
Single Family Residence
Price
-
Sales Price
$309,695
-
Tax Amount
523.0
-
Zoning
Medium
-
Sq. Footage
1, 390
-
Price/SqFt
$222
HOA
-
Association
No
School District
-
Elementary School
N/A
-
Middle School
N/A
-
High School
N/A
Property Features
-
Stories
1
-
Association Amenities
Basketball Court, Tennis Court(s), Trail(s)
-
Senior Community YN
NO
-
Sewer
Public Sewer
-
Tax Lot
12
-
Water Source
Public
Schedule a Showing
Showing scheduled successfully.
Mortgage calculator
Estimate your monthly mortgage payment, including the principal and interest, property taxes, and HOA. Adjust the values to generate a more accurate rate.
Your payment
Principal and Interest:
$
Property taxes:
$
HOA fees:
$
Total loan payment:
$
Total interest amount:
$
Location
County
St Lucie
Elementary School
Middle School
High School
Listing Courtesy of Jacqueline Coleman , Engel & Voelkers Vero Beach
RealHub Information is provided exclusively for consumers' personal, non-commercial use, and it may not be used for any purpose other than to identify prospective properties consumers may be interested in purchasing. All information deemed reliable but not guaranteed and should be independently verified. All properties are subject to prior sale, change or withdrawal. RealHub website owner shall not be responsible for any typographical errors, misinformation, misprints and shall be held totally harmless.
FOUNDER
Hals Blanc
Call Hals today to schedule a private showing.
* Listings on this website come from the FMLS IDX Compilation and may be held by brokerage firms other than the owner of this website. The listing brokerage is identified in any listing details. Information is deemed reliable but is not guaranteed. If you believe any FMLS listing contains material that infringes your copyrighted work please click here to review our DMCA policy and learn how to submit a takedown request.© 2024 FMLS.